Wohn- und Geschäftshaus - Kauf - Goch

Attraktives Wohn- und Geschäftshaus im Herzen von Goch !

599.000 €
Goch
Objektart
Haus
Objekttyp
Wohn- und Geschäftshaus
Vermarktungsart
Kauf
PLZ
47574
Ort
Goch
Zimmer
9
Schlafzimmer
5
Badezimmer
3
Wohnfläche
244 m²
Grundstück
381 m²
Gesamtfläche
362 m²
Etagenzahl
3

Beschreibung:

Dieses attraktive Wohn- und Geschäftshaus aus dem Jahr 1965 überzeugt durch seine zentrale Lage im Herzen von Goch sowie eine solide Bausubstanz und nachhaltige Vermietung. Die Immobilie ist vollständig unterkellert und verfügt über eine Gesamtfläche von ca. 361,58 m², verteilt auf vier Ebenen. Alle Einheiten sind derzeit vermietet und bieten somit eine stabile Einnahmequelle – ideal für Kapitalanleger.

Aufteilung:
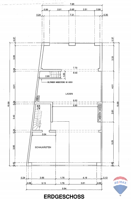
Erdgeschoss (Gewerbefläche):
Fläche: ca. 117,12 m²
Nutzung: Gewerbeeinheit (z. B. Ladenlokal, Praxis, Büro)
Große Fensterfront, gute Sichtbarkeit und Laufkundschaft dank zentraler Lage

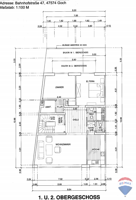
1. Obergeschoss (Wohnung):
Wohnfläche: ca. 94,81 m²
Großzügige Raumaufteilung mit Zugang zur Terrasse
Helle Räume, ideal für Familien oder Paare

2. Obergeschoss (Wohnung):
Wohnfläche: ca. 91,17 m²
Zugang zu einem Balkon
Solide Grundrissgestaltung, gute Vermietbarkeit

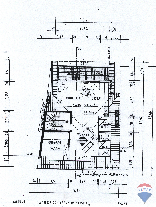
Dachgeschoss (Wohnung):
Wohnfläche: ca. 58,48 m²
Gemütliche Loggia mit schönem Ausblick

Ausstattung:
Heizung: Gas-Zentralheizung (erneuert 2006)

Fenster: Rollläden vorhanden

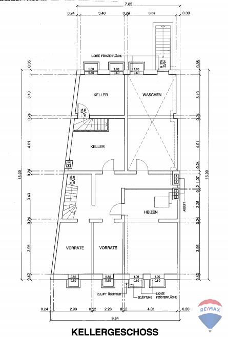
Unterkellerung: Vollunterkellert mit zusätzlichen Abstell- und Technikräumen, Waschkeller

Außenbereiche: Terrasse, Balkon und Loggia bieten zusätzlichen Wohnkomfort

Sonstiges: Gute Mieterstruktur, kein Leerstand

Mieteinnahmen: 33.000 € KM/ Jahr

Energieausweis ist vorhanden.
Primärer Energieträger: Gas

Lagebeschreibung:

Das Wohn- und Geschäftshaus befindet sich in einer attraktiven und belebten Gegend der Stadt Goch im Bundesland Nordrhein-Westfalen. Eingebettet in eine charmante Umgebung bietet diese Lage eine hervorragende Anbindung an die städtische Infrastruktur sowie die umliegende Natur.

Dank der Nähe zum Stadtzentrum genießen die Bewohner und Besucher eine Fülle von Annehmlichkeiten, darunter Einkaufsmöglichkeiten, Restaurants und Cafés, die alle bequem zu Fuß erreichbar sind. Öffentliche Verkehrsmittel wie Bus- und Bahnverbindungen stehen in unmittelbarer Nähe zur Verfügung, was eine einfache Erreichbarkeit der umliegenden Gebiete und Städte gewährleistet.

Goch ist bekannt für seine lebendige Gemeinschaft und die vielfältigen Freizeitmöglichkeiten, die sowohl im urbanen als auch im nahen ländlichen Umfeld zur Verfügung stehen. Darüber hinaus sind Kindergärten, Schulen und medizinische Einrichtungen gut erreichbar und tragen zur Attraktivität dieser Lage für Familien und Gewerbetreibende bei.

Insgesamt besticht die Lage durch ihre Kombination aus urbanem Leben und der Nähe zur Natur, wodurch sie für unterschiedliche Lebensstile und Geschäftsbedürfnisse ideal geeignet ist.

Ausstattung:

Kabel Sat TV

Energieausweis:

  • A+
  • A
  • B
  • C
  • D
  • E
  • F
  • G
  • H
0
30
50
75
100
130
160
200
250
>250
Baujahr:
1965
Endenergiebedarf:
144,5 kWh/(m²a)
Energieausweis:
Bedarfsausweis
Energieeffizienzklasse:
E
Energieausweis gültig bis:
12.12.2033
wesentlicher Energieträger:
Gas
Baujahr lt. Energieausweis:
2006

Ausstattungsbeschreibung:

Wohn-und Geschäftshaus
komplett vermietet
unterkellert
EG: Gewerbefläche 117,12 m2
1. OG 94,81 m² mit Terrasse
2. OG 91,17 m² mit Balkon
DG 58,48 m² mit Loggia
Baujahr 1965
Gasheizung 2006
Zentralheizung
Rollläden
Kunststofffenster doppelt verglast
zentrale Lage in Goch, gut frequentiert

Sonstige Angaben:

Verpassen Sie keine Immobilie mehr!
Unser komplettes Immobilienangebot finden Sie immer zuerst auf www.remax.de
Gerne helfen wir Ihnen auch beim Verkauf oder der Vermietung Ihrer Immobilie.
Karriere bei REMAX?
Infos: www.remax.de/karriere
Franziska Schönberg & Frau Julia Thyssen
Franziska Schönberg & Frau Julia Thyssen
RE/MAX Goch
0 28 23 / 91 90 710

Dokumente

PDF-Exposé
Jeder Lizenznehmer ist ein rechtlich eigenständiges Unternehmen und handelt auf eigene Rechnung und Verantwortung.